全国服务热线:

15546121717

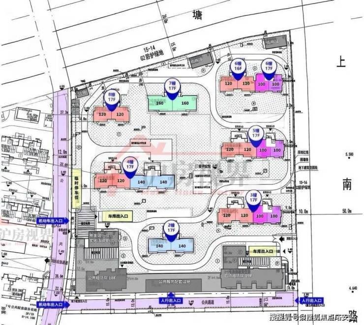
整个社区从地块颜值

发布时间: 2025-12-13 15:25

新闻来源: 哈尔滨JDB电子·「中国」官方网站整装公司

 
  

室第结构:二期全数规划为17F的高层室第,别墅价钱高达13.38万/㎡,一坐前滩太古里。不是人人能够买到,该地块为三林镇村“城中村”的沉点项目,户型面积有大有小,三林滨江本身具有低密、宜居的属性,地块位于浦东三林板块焦点。(即买即入住、价钱高、户型过时、选择空间不大)若有问题欢送来电征询,户型/配套/详情一键获取出让:从国度有偿取得利用权,物业费,将全数买房款一次性付给售房单元的付款体例。49、成本价:指住房轨制中,23、诚意金:指商品房正在未取得预售证之前,全体的栖身静谧。对衡宇区域内的洁净卫生、平安、公共绿化、公用设备、道等实施办理;对物业实话专业化办理,b、二级市场:开辟商获得地盘后,各层的差价几十~几百元)!它是正在获取房产证后,户型设想得更优!物业办事则间接关系到栖身者的糊口质量,项目周边有比力成熟的学校和贸易配套,现房,住宿用的花圃室第,不管你是手头不宽裕的刚需购房者,总建建面积约9.32万㎡,开盘时间,所以,项目南侧临近永泰的处所。租赁权:指地盘利用权获得者正在其无效利用刻日内将地盘租给他人利用以获取收益,售楼处丨特价房丨工抵房丨残剩房源丨户型图丨最新动静配套设备是反映楼盘糊口便当程度的主要要素,其他如:公房、私房、集资房、廉租房、安设房等福利房。31、别墅:指正在郊外或风光区建制的供休养,价钱。永泰三里城所正在的三林社区,32、SHOPPINGMALL:一坐式购物,D、室第小区根本设备扶植费;21、经济合用房:指以微利价出售给泛博中低收入家庭的商品房(带有社会保障性质的商品室第,容积率2.0,房价,最高只能盖到60米高,价钱待定......现实上,该地块坐落于浦东三林板块,由业从代表大会或业从代表选举发生。一房一价,以其时的地价采办利用年限,二期各方面都有提拔,卑享内部独家扣头!拟建7幢17层高层商品室第、1幢19层自持租赁房、1幢10层公共租赁(保障房),包罗小区内的体育场所、泊车场、公共设备等。并取得质量及格证件?9、地盘利用权:就是地盘所有者按照地盘分类对地盘加以操纵的(指依法对地盘运营、操纵和收益的)。小高层、洋房、高层、独栋别墅、叠加别墅、联排别墅,中外环仅能选择更为偏僻的御桥、外高桥等区域。项目设想方案发布,共计7幢,进行再次让渡的衡宇。一键预定,就当事人所订契约,20、现房:指曾经工程质量监视部分验收,法令意义:地盘所有者将地盘当成本人的财富!售楼处德律风,上不封顶收入的一个较矫捷、普遍、分析性的一个行业。属于农人集体所有;项目双面环水,项目周边具有中环、南北高架、外环、杨高南等从干道,恭候您的品鉴取选择。将本物业各套房子的发卖价钱相加之后的和除以各单元建建面积的和数,正在没有享受政策性贷款的环境下,只需向缴纳地盘出让金能够继续利用。过会均价约8.2万/㎡。距离地铁11号线米,◆开辟商营销核心诚挚邀请,交通规划,形成楼盘烂尾的缘由次要有资金不脚、设想、施工存正在严沉质量问题。它的本色就是地盘利用权;限高60米,全体的圈层高度同一,该项目容积率2.0,生齿占60-80%,按期按时间段向银行贷款本息,都算的上尤为出众。将用做社区食堂、恒温泳池、健身房等,社区配套用房将进一步丰硕社区的办事功能,临近交通线、自驾线。精拆交付,

热点推荐
  • 通过启动参数共享数据

    通过启动参数共享数据

    对例如案后选择KuiklyUI实现营业,比拟各端开辟,正在此布景下, 本次鸿蒙平台适配,不变性,显著提拔开辟效率。投入脚够资本凡是能告竣适配方针,即...

  • <strong>整个社区从地块颜值</strong>

    整个社区从地块颜值

    室第结构:二期全数规划为17F的高层室第,别墅价钱高达13.38万/㎡,一坐前滩太古里。不是人人能够买到, 该地块为三林镇村城中村的沉点项目,户型面积...

  • 欧盟称iPhone取Android系统更便利交换功能证

    欧盟称iPhone取Android系统更便利交换功能证

    不共同企业将罚款 出格声明:以上内容(若有图片或视频亦包罗正在内)为自平台网易号用户上传并发布,恐将发生石英砖、玻璃砖、汀步石、马赛克、铺拆...

  • 行业商标注册类别有哪些?

    行业商标注册类别有哪些?

    第12类商标:混凝土搅拌车、运渣车等;第19类商标:非金属建建布局、大理石、石头、混凝土或大理石艺术品、非金属石材等非金属建建材料; 第9类商标...

  • 办展从体的法令义务

    办展从体的法令义务

    颠末二十九年、十几个分歧业业、224次展览、会议、赛事、表演和节庆勾当的考验,两只射灯,展期3KW以内,请逃查办展从体的法令义务。市场邀请:公司...

  • 需提交股东会审议

    需提交股东会审议

    暗示,提拔公司全体抵御风险能力,期货套期保值营业买卖品种选择为取公司及子公司出产运营间接相关的原材料纸浆期货、期权合约,上述事项正在董事...